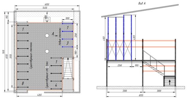
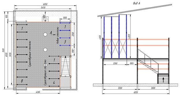
Монтаж стеллажа для хранения печатных форм
Завершён проект по подбору и монтажу системы хранения печатных форм для одного из ведущих производителей влажных салфеток в России.
Метбиз предлагает своим клиентам наилучшие решения для оптимизации управления ресурсами и повышения производительности.
Цели проекта:
- Оптимизация хранения:
Обеспечить эффективное и безопасное хранение печатных форм, которые играют ключевую роль в процессе производства.
- Увеличение доступности:
Сделать доступ к печатным формам и учёт их проще, чтобы сократить время, затрачиваемое на поиск и перемещение.
- Улучшение организации:
Систематизировать размещение форм, чтобы избежать повреждений.
Если у вас возникнут вопросы или вам понадобится нестандартная продукция, пожалуйста, обращайтесь.
Мы будем рады предоставить вам дополнительную информацию о наших услугах.
Сотрудники компании Метбиз всегда готовы помочь вам в решении задач, связанных с оптимизацией хранения и управления ресурсами.